Квартира ЖК люмьер, Санкт-петербург.
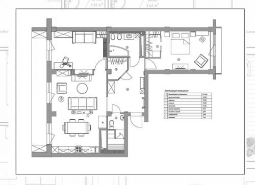
Интерьер квартиры выполнен в элегантном английском стиле, по желанию заказчиков. Кроме того, данная стилистика прекрасно сочетается с окружением и видом из окна, ведь объект расположен в историческом центре Петербурга. Также немаловажным требованием была функциональность. Чтобы помещение наиболее полно соответствовало образу жизни хозяев, была сделана небольшая перепланировка. Появились удобные места хранения (кладовая и гардеробная
. В оформлении интерьера использована благородная цветовая гамма и классические декоративные приемы. Лепнина подчеркивает геометрию помещения и придает атмосферу парадности гостиной. Спальня же, напротив, уютная и камерная. Кабинет традиционно оформлен деревом.

Площадь - 105 m.
Автор дизайна - студия дизайна интерьера Sun.







