Квартира площадью 47, 5 кв.
Метров в Киеве.
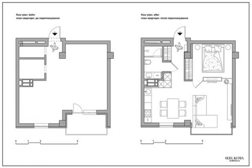
Архитектор Олег куява представил проект интерьера квартиры площадью 47, 5 квадратных метров в Киеве.
Основной акцент был сделан на функциональность. В небольшой квартире удалось компактно разместить зоны кухни, столовой, гостиной, а также спальню и ванную комнату, которая вмещает душевую, умывальник и встроенную стирально - сушильную машину.
Спальня отделена от гостиной шкафом со встроенным в него электрическим камином. Некоторые секции шкафа сделаны из стекла, что делает помещение визуально более лёгким и светлым.
Для оформления стен спальни и гостиной использованы декоративные гипсовые панели с абстрактным геометрическим узором. Пол приятным и тёплым на ощупь материалом - микроцементом покрыт.
В зоне кухни и в коридоре архитектор использовал деревянные панели, за которыми скрыты встроенный холодильник, выдвижные ящики, водонагреватель, система очистки воды, вход в санузел и гардеробный шкаф.
В результате несмотря на небольшую площадь получилась комфортная и функциональная квартира в современном стиле.







