Всё об интерьере для дома и квартиры

Лучшие идеи для дизайна интерьера, полезные советы, интересные статьи

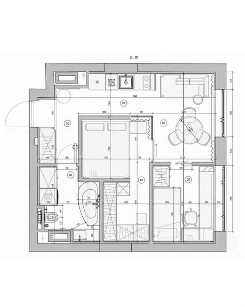
Квартира, общая площадь 38 кв.

06.09.2025 в 13:54

м.
Квартира для творческой молодой мамы с двумя детьми, которые не сидят на месте. По интерьеру сразу виден характер заказчика: яркий цвет заряжает энергией поэтому он жизненно необходим динамичным непоседам. Панно в гостиной с известной иконой стиля и дизайнером интерьеров Айрис апфель служит акцентом всего пространства и отражает творческую составляющую личности.

Квартира, общая площадь 38 кв.
Источник вдохновения Pinterest.

Квартира, общая площадь 38 кв. 01
Квартира, общая площадь 38 кв. 02
Квартира, общая площадь 38 кв. 03
Квартира, общая площадь 38 кв. 04
Квартира, общая площадь 38 кв. 05
Квартира, общая площадь 38 кв. 06
Квартира, общая площадь 38 кв. 07
Квартира, общая площадь 38 кв. 08
Квартира, общая площадь 38 кв. 09