Всё об интерьере для дома и квартиры
Лучшие идеи для дизайна интерьера, полезные советы, интересные статьи
Main menu
Главная
Интерьер для дома
Интерьер для квартиры
Идеи дизайна
Мебель
Главная
»
Интерьер для квартиры
»
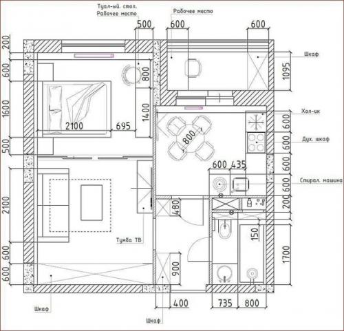
Интересный дизайн - проект однокомнатной квартиры площадью 35 кв.
Интересный дизайн - проект однокомнатной квартиры площадью 35 кв.
28.09.2020 в 13:55
Интерьер для квартиры
м + планировка
.
Категории:
Дизайн интерьера дома
,
Интерьер однокомнатной квартиры
,
Интерьер для квартиры
Понравилось? Поделитесь с друзьями!
⇦
Дизайн - проект детской для мальчика.
⇨
В_гостях_у_звезды: дом теннисистки Марии Шараповой в Лос-анджелесе.