Интерьер квартиры в Вильнюсе.
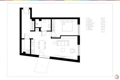
Работая над дизайном квартиры площадью 67 квадратных метров в Вильнюсе, Литва, студия Akta стремилась создать современное пространство, находящееся в гармоничных отношениях со старым городом.
Архитекторы разработали утончённый и изысканный интерьер, основу которого составляет монохромный фон стен, усиливающий звучание цвета отдельных деталей и позволяющий выделить произведения искусства
. Холодные серые тона сбалансированы бархатной обивкой мебели синего и красного цветов и дополнены графичными акцентами чёрных металлических деталей. Единый стиль во всей квартире выдержан. В спальне одна стена выкрашена в такой же светло зелёный цвет, как и шкафы в столовой. Детали мебели ванной повторяют элементы, использованные в гостиной. Отсылкой к местным традициям является рисунок деревянного пола, напоминающий советский паркет, но выполненная из этого же покрытия тумба под телевизор вносит ноту иронии благодаря необычному использованию привычного материала.









Читайте далее информацию о мебели для гостиной http://interior.ru-best.com/mebel/mebel-dlya-gostinoy