Всё об интерьере для дома и квартиры

Лучшие идеи для дизайна интерьера, полезные советы, интересные статьи

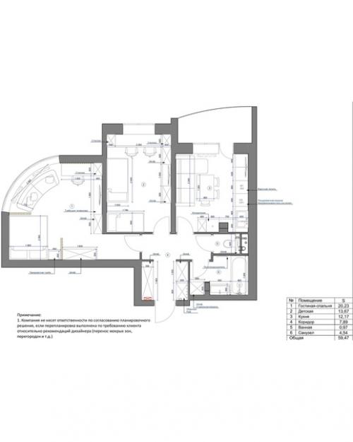
Дизайн - проект двушки, площадь 59, 47 кв.

31.01.2021 в 21:55

м.

Дизайн квартиры выполнен в светлой цветовой гамме, без ярких акцентов.

Дизайн: Rerooms_Design
Дизайн - проект двушки, площадь 59, 47 кв..

Дизайн - проект двушки, площадь 59, 47 кв. 01
Дизайн - проект двушки, площадь 59, 47 кв. 02
Дизайн - проект двушки, площадь 59, 47 кв. 03
Дизайн - проект двушки, площадь 59, 47 кв. 04
Дизайн - проект двушки, площадь 59, 47 кв. 05
Дизайн - проект двушки, площадь 59, 47 кв. 06
Дизайн - проект двушки, площадь 59, 47 кв. 07