Всё об интерьере для дома и квартиры
Лучшие идеи для дизайна интерьера, полезные советы, интересные статьи
Main menu
Главная
Интерьер для дома
Интерьер для квартиры
Идеи дизайна
Мебель
Главная
»
Интерьер для квартиры
»
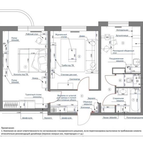
Дизайн - проект двухкомнатной квартиры.
Дизайн - проект двухкомнатной квартиры.
22.06.2021 в 23:55
Интерьер для квартиры
Что-то серого цвета многовато. Стоило бы разбавить немного серость
.
Категории:
Дизайн интерьера дома
,
Интерьер для квартиры
Понравилось? Поделитесь с друзьями!
⇦
Я уже показывала квартиру моей сестры в городе, а сейчас ребята обживают квартиру в загородном доме.
⇨
Укладка фартука на готовую кухню.