Всё об интерьере для дома и квартиры
Лучшие идеи для дизайна интерьера, полезные советы, интересные статьи
Main menu
Главная
Интерьер для дома
Интерьер для квартиры
Идеи дизайна
Мебель
Главная
»
Интерьер для квартиры
»
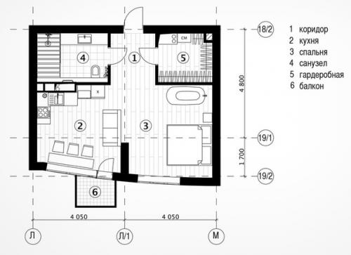
Дизайн однокомнатной квартиры, 45 кв.
Дизайн однокомнатной квартиры, 45 кв.
01.06.2019 в 16:29
Интерьер для квартиры
м.
Автор - Дарья Чаплыгина и Юлия пеккер
.
Категории:
Дизайн интерьера дома
,
Интерьер однокомнатной квартиры
,
Интерьер для квартиры
Понравилось? Поделитесь с друзьями!
⇦
Кухня всего 5 м для двоих хватит!
⇨
Дизайн четырехкомнатной квартиры, 120 кв.