Дипломная работа нашей студентки буровой Александры.
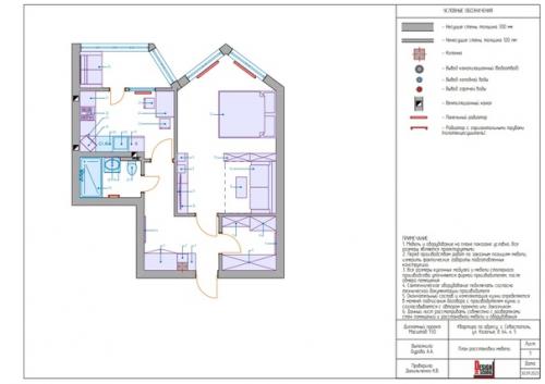
Объектом дипломного проекта является однокомнатная квартира.
Общая площадь квартиры 49, 5 м.
Высота потолков 2, 8 м.
Заказчиком является мужчина 24 лет, военнослужащий.
Были поставлены следующие задачи:
1. создать лаконичное, функциональное пространство для комфортного времяпровождения;.
2. организовать Lounge зону на балконе;.
3. составить цветовое решение, основанное на пожеланиях заказчика: преимущественно спокойные тона, с добавлением тёмных, акцентных цветов;.
4. рассмотреть несколько вариантов расстановки мебели в каждом помещении;.
5. подобрать предметы интерьера, светильники, материалы и аксессуары аксессуары, подходящие по свойствам и формам общему стилевому направлению и образу интерьера.
Пожеланиям заказчика было создание современного, сдержанного, комфортного интерьера с элементами брутализма и минимализма.






