Белая квартира с синими акцентами 78 м.
29.01.2020 в 17:54
Дизайнеры Алексей Шибаев и Александра Аверкина из бюро Zeworkroom Studio оформили квартиру в старом жилом фонде, создав современный интерьер с необычными обрамлениями окон глубокого синего цвета и холодильником на балконе.
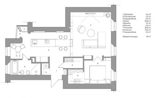
Тип недвижимости: квартира в центре Москвы в здании наркомата связи - памятнике архитектуры 1940-х годов.
Метраж: 78 м.
Стиль: минимализм с элементами лофта.
Цветовая гамма: белый + дерево + контрастные вставки глубокого синего цвета.
Пожелания владельца: заказчик любит путешествовать, часто останавливался в старых квартирах Лондона и Парижа, хотел получить современную харизматичную квартиру в старом фонде.
Авторы проекта: дизайнеры Алексей Шибаев и Александра Аверкина, Zeworkroom Studio.









Категории: Интерьер для квартиры, Дизайн интерьера дома, Современный интерьер квартиры, Стили интерьеров квартир