Тихая жизнь на берегу озера: что еще нужно для идеального отдыха?
Владельцы хотели создать простой деревянный дом для отдыха на берегу озера. Архитекторы выбрали деревянную конструкцию с простым большим фронтоном, который охватывает все жилые помещения. Фундамент не виден, поэтому здание очень легкое и чистое. Простая архитектура и скромные габариты не нарушают природную среду.

Стены и крыша наружной стены кедровыми досками покрыты. Обе боковые стены коттеджа имеют три панорамных окна, которые стирают границы между интерьером и экстерьером. Навес крыши создает небольшую зону отдыха под крыльцом с видом на озеро. Благодаря деревьям, расположенным у южной застекленной стены дома, в помещении не попадают прямые лучи жаркого солнца.

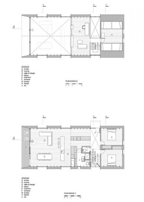
В интерьере отличительной чертой является открытая крыша фронтона и деревянные балки - все окрашены в белый цвет. Белый интерьер с темными рамами остекления контрастирует. Хотя интерьер в значительной степени выполнен открыто, в нем достаточно места для сна. В общей сложности может разместиться до 12 человек в двух комнатах на первом этаже плюс есть спальня на этаже.

Prefab@in_Woods Modern@in_Woods.




