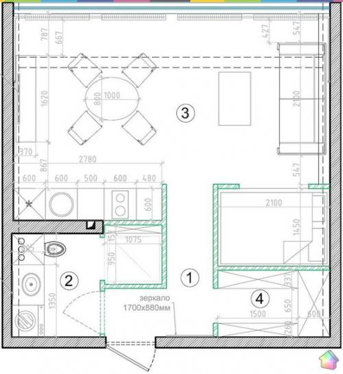
Студия площадью 35 кв.
Метров от Korneev Design Workshop ч. 2.
"Мы с заказчиками часто о поездках разговариваем. Однажды они поделились впечатлениями от Лиссабона - и мы нашли изображение с местным трамваем, который мог бы им напоминать о путешествии", - рассказывает дизайнер.
Спальня отделена от остального пространства порталом, в изголовье кровати уложена паркетная доска из остатков материала, который архитекторы использовали на предыдущем объекте у тех же заказчиков.
Фасады самой бюджетной кухни из икеа выкрасили чёрной краской, а типовой комод из сосны - жёлтой.
Фигурки - обереги авторы проекта привезли из Индонезии, с острова сулавеси.
Единственная деталь, которая перекочевала из старого интерьера в новый - напольная плитка в санузле. Отделка стен выполнена из старого распиленного кирпича: его заказывали в Петербурге. Фотографии: Ольга шангина.








