Проект загородного дома.
Компактный дом с мансардой.
Выбирая компактный коттедж с мансардой в 90 квадратов для малочисленной семьи, хозяин не прогадает. Для отделки используются благородные коричневые тона, которые мягко и по-домашнему смотрятся рядом с обилием древесины натурального светлого и темного цвета применяемой для архитектурных элементов. Большая и надежная терраса прекрасным продолжением жилого помещения будет. Ее пространство можно использовать для приготовления вкусных обедов на открытом огне
. Установив шезлонги получатся хорошие спальные места. Для того чтобы террасу превратить в кухню потребуется разместить стол со стульями и накрыть вкусный обед. Для приема здесь гостей вообще ничего не нужно делать. Им, несомненно, понравится пространство и будет высоко оценено.
Первый этаж, как и положено хлебосольному дому, готов к дружеской встрече. В одном большом пространстве для гостиной, кухни и столовой имеется все необходимое чтобы приготовить и отведать ароматные блюда, в удобных креслах вести светскую беседу или слушать задушевную музыку.
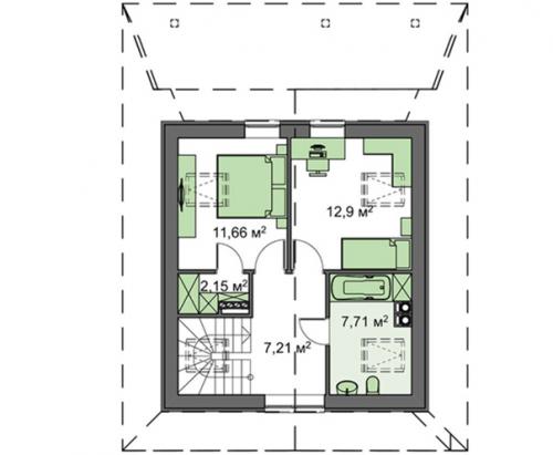
Этаж на мансарде особых сюрпризов не прячет. Две небольшие, но вместительные спальни и санузел как элемент благоустроенности. Но за счет формы помещения получились узким, легко расставятся все необходимые детали интерьера и еще останется свободное место.
Общая площадь: 92. 84 м 2.








