Проект модернистского дома в Подмосковье.
Данный проект имеет очень длинную, сложную и в то же время интересную историю. Проектирование длилось очень долго по ряду причин:
1. жесткие требования и ограничения со стороны управления поселка - общая площадь дома, посадка на участке, охранные зоны, разрешение на строительство и т. д. все это повлекло за собой медленный процесс проектирования, а также затяжное начало строительных работ.

2. заказчиком была пересмотрена общая концепция фасадных решений; был разработан второй вариант, который и стал финальным.

3. наличие на участке большого существующего фундамента, который задавал ограничения и требовал сильной оптимизации проектных и строительных работ. Кроме геологии, нужно было провести анализ, понять состояние бетона и арматуры давно стоящего на участке фундамента. Некоторые вопросы физически нельзя было определить и решить до начала строительных работ, в частности фактическую конфигурацию ленточного фундамента из-за лежащих на нем пустотных плит. После того, как их убрали, проект опять потребовал корректировок.

Название: "Vladimir - House 2".
Архитектура: сбоев Михаил, мастерская Sboev3 Architect.
Расположения: Россия, Москва.
Типология: индивидуальный жилой дом.
Проектирование: 2019.
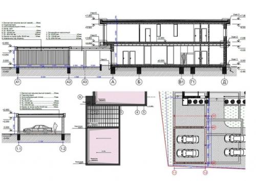
Общая площадь: 280 м 2.
Этажность: 2.

Основные трудности и ограничения, с которыми столкнулись при проектировании:

Наличие существующего фундамента от предыдущего дома.
Большой слой насыпных грунтов.
Грунтовые воды.
Нельзя убрать существующий поселковый забор.
Наличие деревьев на участке, которые необходимо было сохранить.
Все вопросы были решены и грамотно обыграны конструктивно и архитектурно. В результате получился проект, который отвечал всем требованиям заказчиков.
Конструктивная схема:
Фундамент - существующий ленточный фундамент + усиление.
Перекрытия - монолитные.
Утепление - стены - плиты из каменной ваты.
Монолитные участки - пенополистирол.
Светопрозрачные конструкции - из алюминиевого профиля.

Отделка стен:

Экстерьер.
- клинкерная плитка под кирпич.
- деревянный сайдинг.
- Вентфасад.
- аквапанель на металлическом каркасе.
Декор штукатурка + покраска.
Интерьер.
- кирпичные стены под покраску.
- декоративные панели.
- керамическая плитка /с. у. /.
Покрытия:
Экстерьер.
- двор - брусчатка - терраса - террасная доска интерьер - паркетная доска - спальни - плитка - керамогранит /с. у. /.