Номинация: интерьер жилого пространства.
Проект: интерьер жилого дома.
Автор: Ульяна сапатова.
Цель проекта: реконструкция интерьера жилого дома.
Основной задачей проекта является создание легкого, светлого и.
Комфортабельного пространства для проживания всех членов семьи.
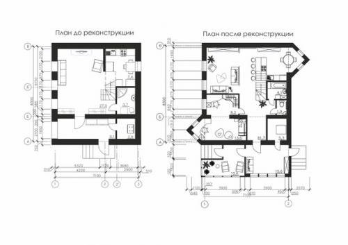
Объектом реконструкции является двухэтажный дом. План первого этажа был взят для реконструкции интерьера. Проект для семьи из шести человек рассчитан.

Главные недостатки существующей планировки: недостаточно жилых комнат; кухня маленькая по площади; из-за большого количества проживающих в доме некомфортно с совмещенным санузлом; коридорное пространство "Сжато".

Исходя из поставленных задач было предпринято следующее: в зоне, где был коридор, в некоторых местах сносится стена и добавляется эркер; зона гостиной становится меньше за счет пристройки комнаты; зона гостиной и кухни отделяется декоративной перегородкой из вертикальных деревянных реек; в кухне - столовой появляется симметричный эркер, за счет чего увеличивается площадь; у ванной комнаты стена выдвигается в сторону кухни.

За счет этого ванная и санузел становятся раздельными.
Проект выполнен в стиле "Онто - арт", который в оформлении позволяет.
Создать свежий, одухотворенный интерьер, не лишенный при этом удобства, он выражается во всем - в отделке стен, в текстиле, в предметах интерьера. В этом проекте это выражается в текстиле подушек и картинах. Предусмотрено использование простых геометрических форм, присутствует обилие бирюзового и желтого цвета, что характерно для этого интерьера. В стиле "Онто - арт" используют только натуральные материалы, в этом проекте дерево.
Задействовано в декоративных рейках, керамика в кухонном гарнитуре, хлопок в текстиле. В проекте предусмотрено окрашивание стен в белый цвет, потолок белый с многоуровневыми панелями и встроенным освещение.

После реконструкции дома вся площадь максимально задействована, что позволяет создать более комфортные условия для проживания. Дизайнперспектива дизайнперспектива 2022 интерьержилогопространства ульянасапатова.


