Всё об интерьере для дома и квартиры

Лучшие идеи для дизайна интерьера, полезные советы, интересные статьи

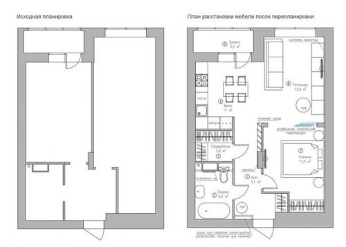
Многие из нас не готовы к ярким деталям в своём доме.

30.05.2017 в 23:55

У некоторых спокойные цвета на первом месте стоят. При этом, все хотят, чтобы их дом был красивым, удобным и индивидуальным. Сегодня показываем пример того, как сделать стильный интерьер не прибегая к "Кричащим" деталям.

Дизайн проект квартир, офисов, домов, коммерческой недвижимости.
Подбор и поставка отделочных материалов от фабрик производителе.
г. набережные челны 66 мкрн. ул. Абдулы Алиша, д. 9, блок 18.
Тел: 7 960 062 4246.
Email: Info@Lazaro. ru.
Многие из нас не готовы к ярким деталям в своём доме.
Сайт: www. Lazaro. ru.

Многие из нас не готовы к ярким деталям в своём доме. 01
Многие из нас не готовы к ярким деталям в своём доме. 02
Многие из нас не готовы к ярким деталям в своём доме. 03
Многие из нас не готовы к ярким деталям в своём доме. 04
Многие из нас не готовы к ярким деталям в своём доме. 05
Многие из нас не готовы к ярким деталям в своём доме. 06
Многие из нас не готовы к ярким деталям в своём доме. 07
Многие из нас не готовы к ярким деталям в своём доме. 08