Это красиво оформленное и привлекательное пространство с арочным потолком.
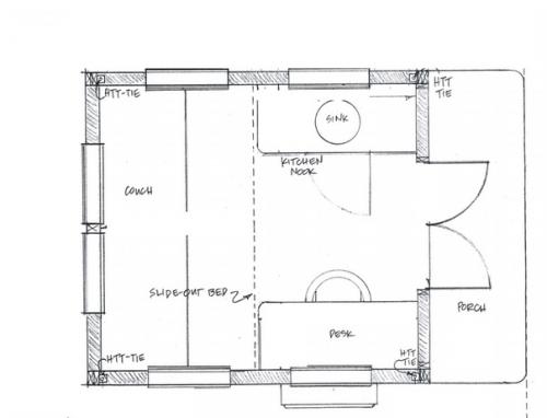
Don Vardo построен на 10-футовом грузовом прицепе с одной осью, который может вмещать до 5000 фунтов. Конструкция включает крытое крыльцо глубиной в два фута, построенное на раме трейлера, что дает внутреннюю площадь в 56 квадратных футов или 5, 2 м. другой вариант дизайна подразумевает 12-футовый прицеп с двумя осями. Внутреннее пространство составляет 88 квадратных футов или 8, 1 м.

Интерьер в себя жилую комнату и ванную с туалетом включает. Первый PAD Don Vardo был спроектирован Кэти Андерсон в 2010 году, и в настоящее время является домом для пары, у побережья Орегона.

Tiny_House@in_Woods Wheel@in_Woods.





