Всё об интерьере для дома и квартиры

Лучшие идеи для дизайна интерьера, полезные советы, интересные статьи

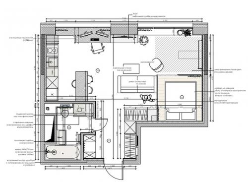
Интерьер квартиры 42 кв.

07.12.2021 в 14:29

м в Москве для молодого мужчины. Зона спальни отделена стеклянными перегородками. Дизайнеры Татьяна Безверхая, Алина Владимирова (TB Design)
Интерьер квартиры 42 кв..

Интерьер квартиры 42 кв. 01
Интерьер квартиры 42 кв. 02
Интерьер квартиры 42 кв. 03
Интерьер квартиры 42 кв. 04
Интерьер квартиры 42 кв. 05
Интерьер квартиры 42 кв. 06
Интерьер квартиры 42 кв. 07
Интерьер квартиры 42 кв. 08
Интерьер квартиры 42 кв. 09