Гостевой дом в США.
Этот уютный и элегантный дом стал "Вторым Домом в Семье" и разработан как домик для гостей. При этом по своим размерам и планировке он вполне подходит под категорию дачных домов для загородного отдыха.

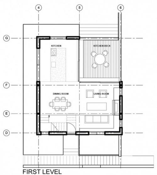
У дома есть полноценный подвал, открытая общая зона с хорошим функциональным разделением на кухню, столовую и гостиную с выходом на открытую террасу. На втором этаже расположена просторная спальня с ещё одной террасой - балконом. Не смотря на простой внешний вид, у дома в целом получилась цельная архитектура с очень тёплым и уютным интерьером. Особенно хорошо получилось сочетание традиционных и современных материалов: здесь есть и обработанный вторичный дуб, и кортен, и чёрная сталь, и матовое стекло, и традиционные белые поверхности. Дополнительным бонусом стала эффектная металлическая лестница. Минидом@Tinyhouse.








