Всё об интерьере для дома и квартиры
Лучшие идеи для дизайна интерьера, полезные советы, интересные статьи
Main menu
Главная
Интерьер для дома
Интерьер для квартиры
Идеи дизайна
Мебель
Главная
»
Интерьер для дома
»
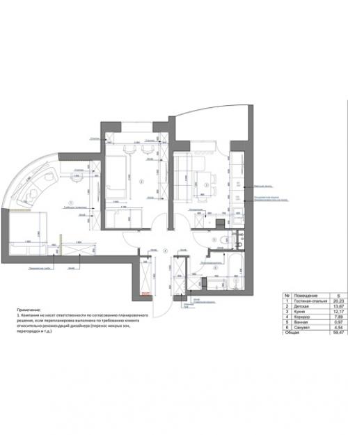
Дизайн проект кухни и прихожей в угловой двушке.
Дизайн проект кухни и прихожей в угловой двушке.
20.07.2022 в 00:32
Интерьер для дома
Приятный интерьер получился
.
Категории:
Дизайн интерьера дома
,
Мебель для кухни
,
Интерьер кухни в доме
,
Идеи дизайна прихожей
Понравилось? Поделитесь с друзьями!
⇦
"Все идеи обустройства нашей скромной квартиры мы подсмотрели в интернете.
⇨
Были в осеннем поленово?