Проекты квартир двухуровневых. Специфика организации пространства в квартире на 2 этажа
- Проекты квартир двухуровневых. Специфика организации пространства в квартире на 2 этажа
- Дизайн двухуровневой квартиры с мансардой. Квартира с мансардой: преимущества и варианты дизайна
- Двухуровневая квартира 80 метров. Двухуровневая квартира 40 кв. м
- Маленькие двухуровневые квартиры. Вариант неповторимого дизайна маленькой двухуровневой квартиры в Дании
- Проблемы двухуровневых квартир. Плюсы и минусы двухуровневых квартир
Проекты квартир двухуровневых. Специфика организации пространства в квартире на 2 этажа
Городская застройка советского периода не предполагала большой жилплощади для каждой семьи. Новостройки с двухуровневыми предложениями пока тоже редкость, но есть предложения по преобразованию в жилой фонд технических сооружений, как на фото.
В основе дизайна двухуровневой квартиры лежит разделение пространства на общественные и приватные зоны
Некоторые двухуровневые квартиры по дизайну внутри больше напоминают обычные двухэтажные дома. В них больше заимствовано из урбанизма «каменных джунглей», от хай тек и стиля техно.
Другие двухэтажные предложения по планировке больше похожи на фойе, рекреации и залы ожидания с большими лестничными проемами или даже клеткой лифта внутри. Ничего удивительного, лестница – основной атрибут такого жилья.

Оформление интерьера зависит от личных предпочтений хозяев квартиры
Роскошно также смотрятся столичные лофт-апартаменты, которые чаще всего сдают в аренду иностранцами, работающим в крупных корпорациях. Высокие потолки и шикарная меблировка приближают хорошо обустроенные просторные помещения к подобию современного дворца.
| 1. | Типичный лофт | Помещение большого метража с высокими потолками в промзоне, приспособленное под жилье, второй этаж полноценный или в виде балконов и навесных карнизов за перегородкой |
| 2. | Пентхаус | Элитный жилфонд на верхнем уровне с террасой и новым походом по планировке – изолированная квартира на 2-3 уровня |
| 3. | Дуплекс | Просторные двухэтажные квартиры с полноценным функционалом всех помещений |
| 4. | Объединенные квартиры | Результат слияния 2 обычных городских квартир одна над другой со своей лестницей |

Просторная квартира-студия в двух уровнях потребует больших финансовых вложений
Листая страницы каталогов и иллюстрации, замечаешь, что в дизайне двухуровневой квартиры в современном стиле нет ничего нового. Добавляется только лестница, которая должна конструктивно вписываться в интерьер. На верхнем этаже такое жилье нередко напоминает мансарду, особенно если часть наклонных.

Лестница интересной конструкции может стать главным элементом дизайна
Функциональное зонирование интерьера двухуровневой квартиры подчинено тем же правилам, что и любое другое жилье. На рынке первичной недвижимости все чаще появляется двухэтажное жилье небольшого метража, включая предложения класса «эконом».

Для небольших квартир актуально рациональное использование пространства под лестницей
Это отличная возможность отделить личное пространство для любителей уединения, обособленных индивидуалистов и творческих личностей. Благодаря большому размаху, просторные квартиры выглядят презентабельно, независимо от выбранной стилистики. Основное пожелание – светлая палитра, чтобы воздуха и света казалось еще больше.
Дизайн двухуровневой квартиры с мансардой. Квартира с мансардой: преимущества и варианты дизайна

Огромным недостатком жилья советской постройки, которого в нашей стране преобладающее большинство, является эстетическое безвкусие и потрясающее однообразие. Такие характеристики не мешают жить в подобной квартире, однако, творческой натуре наверняка захочется чего-то необычного, особенно если есть соответствующие финансовые возможности. Наверное, беспроигрышным и при этом сравнительно недорогим решением проблемы станет покупка квартиры с мансардой.
Особенности
Отношение к чердаку может быть разным, и у нас он до сих пор обычно воспринимается как не просто хозяйственное, а зачастую еще и заброшенное помещение, которым никто не интересуется. Тем не менее это такие же квадратные метры, которые можно было бы использовать более продуктивно, а в условиях города, где не нужно хранить сельскохозяйственный инвентарь или собранный урожай, чердак вполне мог бы стать полноценным жилым помещением.
Сложно сказать, когда чердаки стали впервые использовать для проживания, однако, в середине XVII века они вошли в моду с легкой руки архитектора из Франции по фамилии Мансар, благодаря которому их и стали называть мансардами. Еще пару веков назад мансарды считались не лучшим решением, поскольку их было сложно утеплить и изолировать от осадков. Зато они обычно располагались в центре городов и стоили сравнительно недорого, благодаря чему становились пристанищем богемы – художников, музыкантов и других творческих людей. С тех пор мансарда ассоциировалась с красивой бедностью, в частности, именно на мансардных этажах жили многие персонажи сказок Андерсена.
В советскую эпоху в нашей стране дома с мансардами практически не строили. Почти не строят их и сейчас, но зато они сохранились в центрах старинных городов. Налет романтики в них все еще присутствует, а вот о бедности уже и речи нет, ведь помещение может быть просторным и стильным, хорошо утепленным, а главное – обладать целым рядом специфических преимуществ.
Источник: https://interior.ru-best.com/mebel/dizayn-proekt-kvartiry-dvuhurovnevoy-kratkaya-prezentaciya
Двухуровневая квартира 80 метров. Двухуровневая квартира 40 кв. м
До того, как эта квартира попала в руки архитекторам из ARCHITALES, она представляла собой нежилое помещение. Но у нее было одно большое преимущество – высокие потолки.
На набережной Крюкова канала, в центре Санкт-Петербурга в старом доме с высокими потолками, огромными арочными окнами и толстыми стенами появился современный интерьер. © 4living.ru
Несмотря на самые простые материалы, интерьер квартиры напоминает о дворцовом Петербурге. Гостиную с высокими потолками освещает огромная люстра, свечи зажигаются наравне с электрическими светильниками, а вещи хранятся в сундуках и сервантах.
Полезная площадь до того, как молодые архитекторы взялись создать современный интерьер для квартиры старого дома, составляла всего 40 кв. м. А вот высота потолков в этой квартире – 4,70 м. Поэтому было решено построить второй этаж для спальни. Этот прием позволил увеличить жилое пространство до 53 кв. м. Однако на втором этаже поместилась не только кровать, но также и гардеробная, и небольшой санузел.
Сняв старую штукатурку, обнаружили балки перекрытия. Их очистили и решили оставить открытыми, подшив лишь пространство между ними. Открытой также оставили и кладку вокруг оконных проемов.
Каждый аксессуар в этом интерьере обладает неповторимым и самобытным характером. Люстра сделана из химических колб, свет, падающий от свечей, отражается в многогранных зеркальцах бра, чемодан на колесиках под телевизором используется как хранилище для дисков. Весь интерьер в квартире производит впечатление рукотворного, каковым он по сути и является.

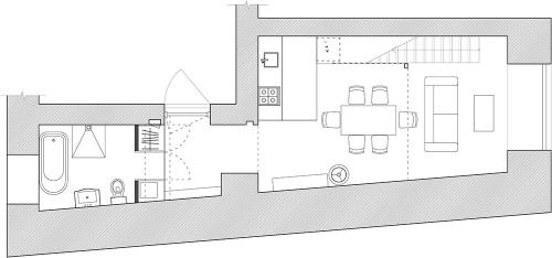
План первого этажа: на плане видно, что помещение архитекторам досталось сложное, сильно вытянутое в длину, неправильной формы. С одной стороны от входа решено было сделать санузел, а напротив него – жилое пространство.

План второго этажа: так как комната имеет трапецевидную форму, на антресоли нет ни одной параллельной линии, но это практически незаметно. Кровать, приставленная к стене, расположена под небольшим углом по отношению к перилам. Линия деревянных фасадов продолжает тему трапеции, что позволило спрятать за ними шкаф и туалет.

В этой квартире много натуральных материалов: дерево, текстиль, камень и совсем нет пластика, поэтому атмосфера здесь очень теплая и уютная.

Лестницу, как и многие другие предметы в этом интерьере, делали по индивидуальному проекту.

Зона кухни находится под антресолью.

На кухне нет громоздких шкафов, только легкие полки для хранения посуды, а столовые приборы хранятся в серванте.

Обратите внимание, как решена система освещения в спальне. Здесь стоят напольные фонарики, большие лампы которых перекликаются с люстрой. Уединенную обстановку создают бра со свечами.

За деревянными фасадами прячется небольшой санузел…

… и крошечная гардеробная. После возведения второго уровня здесь образовалось окошко, через которое проникает свет.

Зеркало, занимающее всю стену напротив входа, зрительно увеличивает небольшую прихожую. Санузел и шкаф для верхней одежды также скрыты за деревянными фасадами. Теплое необработанное дерево буквально светится на фоне светлой плитки и бирюзовой портьеры.

В санузле на первом этаже разместили не только душевой угол, но и красивую ванну на львиных лапах. А всю стену напротив душевой кабины занимает горизонтальное зеркало. В это же зеркало вмонтирована подсветка.

Обратите внимание, как хорошо сочетается открытая кирпичная кладка в проеме окна и строгая мозаичная плитка.

Люстру также сделали по эскизам архитекторов. Собирали ее в цехах Ленинградского Северного завода.
Маленькие двухуровневые квартиры. Вариант неповторимого дизайна маленькой двухуровневой квартиры в Дании

Маленькая двухуровневая квартира в скандинавском стиле
В статье представлен пример дизайна маленькой двухуровневой квартиры площадью 37м2. Квартира расположена на ферме недалеко от Мальме и Копенгагена, что позволило дизайнеру совместить в интерьере минималистичный городской стиль и комфорт деревенских домов.

Цветные детали скрашивают минималистичное пространство
Дизайнер спроектировала интерьер в минималистичных черно-белых тонах, при этом она добавила некоторые яркие детали, используя яркую зелень собранных веток деревьев.
Несмотря на минимализм помещения, удалось создать спокойное многофункциональное пространство с многочисленными зонами, в котором забываешь о маленьком метраже квартиры.
Белоснежная кухня с мебелью из Ikea вместе с обеденной зоной и гостиной расположены на первом этаже квартиры. Пол на этом этаже сделан из бетона и окрашен в серый цвет. Рабочее место на кухне выполнено в белом цвете и отлично сочетается с алюминиевыми стульями и раздвижным белым столом у окна.

Вид на кухню в черно-белых тонах
Большие черные светильники создают приятный контраст с остальными белыми поверхностями на первом этаже. Металлический белый стол с закругленными углами используется как кофейный и приставной столик, на котором расположены журналы, простая настольная лампа, радио и стеклянная ваза.
Сочетание ковра в бежевых тонах с диваном и черно-белыми подушками смягчает минималистичное пространство квартиры, делая ее более уютной и комфортной.

Ковёр бежевого цвета идеально сочетается с чёрно-белыми подушками и светлыми стенами

Интерьер гостиной комнаты
Простая светлая лестница ведет в спальню. Большое окно освещает все пространство спальной комнаты, подчеркивая теплоту серых оттенков в интерьере и пол из необработанного дерева. Слева от кровати расположена белая тумба с лампой для ночного чтения.

Светлые стены прекрасно гармонируют с серыми оттенками спальной комнаты
И в конце концов, в углу спальной комнаты находится рабочее место, выполненное, как и кухня на первом этаже, в минималистичном стиле. Простой длинный стол и алюминиевый стул белого цвета контрастируют с черной доской на стене и прочими деталями.

Проблемы двухуровневых квартир. Плюсы и минусы двухуровневых квартир
Образ двухъярусной квартиры понятен каждому. Это жилье в многоквартирном доме, которое занимает сразу два этажа. Пик любви к таким площадям был несколько лет назад, но и сейчас они остаются мечтой многих.

Фото: shutterstock.com
Большинство людей никогда и не были в подобных квартирах и судят исключительно по красивым картинкам в журналах и интернете: панорамное остекление, шикарная лестница, второй свет, дизайнерский интерьер. Все эти образы неразрывно связаны с мечтами о двухэтажных квартирах.
Давайте разберемся, какие у подобного жилья могут быть плюсы и минусы, исходя из здравого смысла и рассказов дизайнеров.
Хорошую мысль дизайнера “Студии 3D” Полины Ивановой о таких квартирах приводит портал houzz.ru :
“Плюсы и минусы двухуровневой квартиры друг друга компенсируют”
Многих привлекает то, что двухъярусные квартиры — имитация загородного дома в городской среде. При этом не будет земельного участка и внешних стен, за которыми придется следить, ремонтировать, приводить в порядок. Минусом этой стороны вопроса становится отсутствие отдельного входа.

Фото: shutterstock.com
Лестница — главный атрибут, который придает интерьеру атмосферу частного дома и становится важным дизайнерским элементом. Она же является источником больших проблем:
- не очень подходит для семей с детьми и пожилыми из-за травмоопасности и трудностей постоянного подъема и спуска;
- “съедает” много полезной площади;
- требует много денег и времени на расчет по функциональности, эргономике, конструкции;
- не всегда есть возможность выбрать, где будет располагаться лестница, так как застройщик сам определил проем.
Практически неоспоримый плюс — это возможность зонирования площади, когда приватную зону делают максимально закрытой (ее обычно размещают на втором уровне). Внизу остаются кухня, столовая, гостиная, кабинет. Но планировка требует значительных вложений в помощь специалистов, которые помогут грамотно разместить зоны и провести коммуникации.
Важно! Такие квартиры не только дороже, но и требуют больше средств на обустройство, ремонт, оплату коммунальных услуг.