Планировки, которых лучше избегать.
Окон или слишком глубокая планировка мало.
Избегайте слишком глубоких по планировке квартир с малым количеством окон. В этом примере две трети квартиры навсегда останутся в вечной тьме. Люди это не всегда при осмотре замечают.
Длинный балкон.
Внимание! Только в том случае, если у вас нет идей, что делать с нелепым длинным и застекленным помещением, то потом идеи вряд ли появятся. Лучше выбирать другую квартиру. Время балконов для хранения хлама, на которых забытый прошлогодний борщ тянулся бы к вам щупальцами и пытался заговорить, уже безвозвратно уходит. Придется жить красиво.
Смарт - квартиры шириной с вагон метро.
Сейчас модно называть мини - квартиры, полученные из опилок и обрезок квартир побольше, смарт - квартирами. Их легко отличить не только по размеру, но и по количеству лапши на ушах у их владельцев от маркетологов.
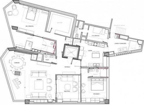
Изогнутые стены или стены не под прямым углом.
Только в том случае, если вы сталкивались раньше с ремонтами и точно знаете, что кривые стены - это ваше, то можете пропустить этот пункт.
Прямоугольные комнаты вместо кривых - это не правило, а рекомендация. Но пока 3D-принтеры еще не печатают мебель в промышленных масштабах, с такой планировкой вы будете страдать.

Многоуровневые квартиры.
Многоуровневые квартиры как кабриолеты: все их хотят и хвастаются, но никто потом не покупает такую же машину второй раз.
Почти все клиенты, кроме своего интерьера, меняли заодно всю кровлю и гидроизоляцию террас после строителей.
Комнаты - секторы.
Нарисовать кружок и разбить его на секторы - самый примитивный прием, который должен остаться в студенческих работах, но архитекторы по-прежнему думают, что помещение, где нет и двух параллельных стен, удачная Находка.
В жизни в такой квартире все кажется кривым и недоделанным. Направление пола, расположение мебели, порезка плитки, везде получаются несостыковки, несовместимые с красотой и болезненной любовью к практичности.
Есть еще много деталей, на которые стоит обращать внимание: эркеры, высота потолка после стяжки, окна с арками, панорамное остекление … стоимость ошибки покупки неправильного помещения дороже консультации.




Больше информационного материала об интерьере для квартиры http://interior.ru-best.com/interer-dlya-kvartiry/interer-dlya-kvartiry