Всё об интерьере для дома и квартиры

Лучшие идеи для дизайна интерьера, полезные советы, интересные статьи

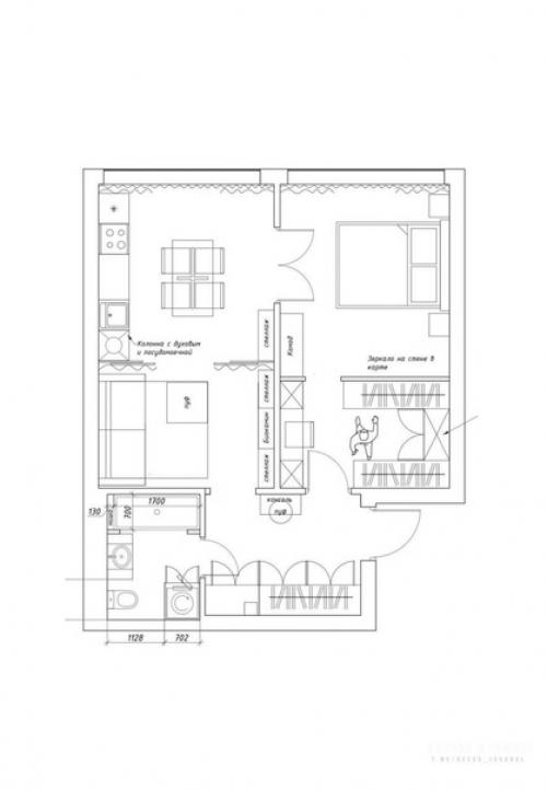
Заказчица хотела создать интерьер с историей и особенно просила найти место для семейных реликвий: люстры "Невеста" и советского бра.

22.09.2023 в 11:29

Хрустальная люстра отлично смотрится в ванной, а бра - в коридоре.
Дизайн: Серж махов
Заказчица хотела создать интерьер с историей и особенно просила найти место для семейных реликвий: люстры Невеста и советского бра..

Заказчица хотела создать интерьер с историей и особенно просила найти место для семейных реликвий: люстры Невеста и советского бра. 01
Заказчица хотела создать интерьер с историей и особенно просила найти место для семейных реликвий: люстры Невеста и советского бра. 02
Заказчица хотела создать интерьер с историей и особенно просила найти место для семейных реликвий: люстры Невеста и советского бра. 03
Заказчица хотела создать интерьер с историей и особенно просила найти место для семейных реликвий: люстры Невеста и советского бра. 04
Заказчица хотела создать интерьер с историей и особенно просила найти место для семейных реликвий: люстры Невеста и советского бра. 05
Заказчица хотела создать интерьер с историей и особенно просила найти место для семейных реликвий: люстры Невеста и советского бра. 06
Заказчица хотела создать интерьер с историей и особенно просила найти место для семейных реликвий: люстры Невеста и советского бра. 07
Заказчица хотела создать интерьер с историей и особенно просила найти место для семейных реликвий: люстры Невеста и советского бра. 08
Заказчица хотела создать интерьер с историей и особенно просила найти место для семейных реликвий: люстры Невеста и советского бра. 09