Всё об интерьере для дома и квартиры

Лучшие идеи для дизайна интерьера, полезные советы, интересные статьи

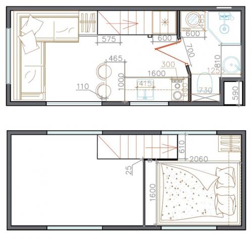
Визуализация интерьера в проекте "Мобильный дом".

01.10.2022 в 12:54

Всего 13, 4 м 2.
Кухня, санузел, подобие гостиной, предусмотрены удобные места хранения. Второй этаж со спальным местом есть.
Визуализатор проекта валя Рыжкова
Визуализация интерьера в проекте Мобильный дом..

Визуализация интерьера в проекте Мобильный дом. 01
Визуализация интерьера в проекте Мобильный дом. 02
Визуализация интерьера в проекте Мобильный дом. 03
Визуализация интерьера в проекте Мобильный дом. 04
Визуализация интерьера в проекте Мобильный дом. 05
Визуализация интерьера в проекте Мобильный дом. 06
Визуализация интерьера в проекте Мобильный дом. 07
Визуализация интерьера в проекте Мобильный дом. 08