Типовой проект. Жилая / общая площадь 131, 8 / 181, 9 м 2.
Гараж 43, 3 м 2.
Площадь застройки 151, 8 м 2.
Кубатура 513, 51 м 3.
Высота 7, 73 м.
Угол наклона кровли 32.
Площадь крыши 90, 49 м 2.
Минимальные размеры участка 18 / 24, 75 м.
Материалы.
Стены газобетон, керамические блоки.
Перекрытие монолитное перекрытие.
Кровля керамическая черепица, металлочерепица, цементно-песчаная черепица.

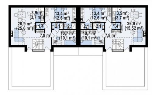
Проект Zb17 представляет собой современный таунхаус с мансардным этажом, гаражом и террасой, разработанный с учетом новейших технологий. Коттедж рассчитан на две квартиры, но может быть исполнен и как дом для четырех семей. Место вариант последовательной застройки имеет.

Гараж, вмещающий две машины, оборудован воротами, которые обеспечивают удобный въезд. Рядом с гаражом в доме находится небольшое хозяйственное помещение. Не считая входа через общий коридор, квартиры полностью разделены между собой.

Весь первый этаж занимает квартира, состоящая из двух комнат, ванной и кухни, объединенной с залом, из которого есть доступ к задней части двора. Квартира, размещенная на мансарде, представлена в другой планировке. Она включает в себя просторную гостиную, имеющую выход на террасу, две спальни и две ванных комнаты, совмещенных с ними. Мансардные окна и люкарны дополняют интерьер, делают помещение более светлым и визуально его расширяют.






