Номинация: интерьер жилого пространства.
Проект: первый этаж дома в стиле минимализм.
Автор: Полина Лебедева.
Цель: разработать интерьер жилого пространства в стиле минимализм, учитывая функциональные, эстетические и эргономические требования, а также исследовать особенности данного стиля и его применение в дизайне интерьера.
В основе данной цели лежит желание создать комфортное и спокойное пространство, где каждая деталь играет свою значимую роль.
Задачи:
- Разработать план жилого пространства, учесть все технические особенности.
- Разработать дизайн - концепцию, включая цветовое решение и формы.
- Минимизировать декоративных элементов и акцентирование на простоте и функциональности.
- Оптимизировать использование пространства для создания комфортной и уютной обстановки.
- Оформить графическую часть проекта, выполнение визуализации проекта в 3D.

Идея проекта: интерьер жилого пространства в стиле минимализм с акцентом на простоте, отсутствие лишнего декора и максимально светлые цветовые палитры. Чистота форм и умеренность в оттенках делают этот стиль достаточно вдохновляющим, позволяя пользователю сосредоточиться на сути жизни и преобразить обыденность в нечто удивительное. В интерьере используются натуральные материалы, такие как дерево, камень, лён, хлопок и шерсть. Цветовая гамма нейтральная: белый, серый, бежевый, коричневый. Яркие акценты могут быть добавлены с помощью текстиля, картин или декоративных элементов.

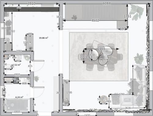
Данный проект представляет собой объект общей площадью 71, 34 м 2. площадь кухни 19, 86 м 2, санузел 2, 52 м 2, ванная комната 4, 24 м 2 и гостиная 44, 72 м 2. высота стен составляет 2, 8 м. просторное помещение с большим количеством свободного места.

Пространство для максимального удобства и функциональности оптимизировано. Мебель компактная, но вместительная, а её расположение продумано для обеспечения свободного передвижения и комфорта.

Современные технологии в интерьер для повышения удобства и комфорта интегрированы. Умный дом, автоматизированные системы освещения и отопления, мультимедийные центры - всё это может быть использовано для создания современной и функциональной жилой среды.

Интерьер жилого пространства в стиле минимализм подходит для людей, ценящих простоту, чистоту линий и функциональность. Он создаёт спокойную и гармоничную атмосферу, способствует расслаблению и отдыху после напряжённого дня. Дизайнперспектива дизайнперспектива 2024 интерьержилогопространства полиналебедева.



