Лето - пора строек!
Дом 210 квм на участке 7 соток, который мы с заказчиками запроектировали зимой, уже возведен и сейчас мы переходим к интерьеру и отделке фасада.
Вчера была на объекте - сделала фото - как есть/как будет делюсь с вами.
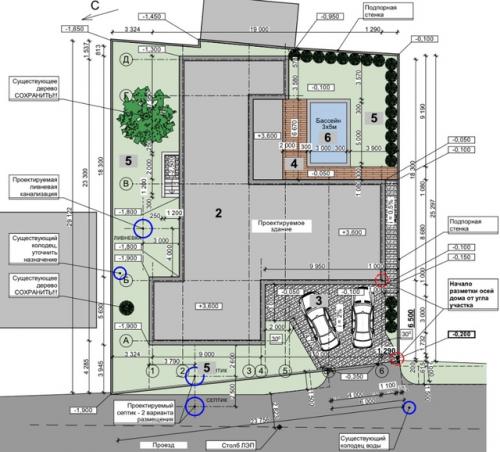
Обратите внимание на план - в верхней части чертежа расположена мастер спальня с блоком гардеробной и ванной, рядом кабинет. Детские находятся в противоположной части дома. На весь дом у меня получилось только 8 кв м коридора - остальное наша полезная площадь самих помещений! Окна спальни и гостиной выходят во внутренний двор, в котором планируется терраса с навесом и бассейн. Сторона двора - юго-восток - таким образом летнее солнце в первой половине дня прогреет от ночной прохлады, а тень во второй половине дня не даст перегреться поверхностям.
Архитектор - Екатерина Брехова.








