Квартира - офис в 20 м 2.
19.02.2016 в 14:57
Ideas Interior Design.
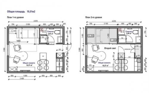
По пожеланию заказчика на данной площади необходимо было создать функциональное и комфортное пространство для проживания и работы 2-х человек. Было предусмотрено разделение пространства на условные функциональные зоны кухни, гостиной, рабочего пространства и зону спальни.

Спальную зону с полноценной кроватью, а также зоны хранения вещей разместили на втором уровне. В зоне отдыха комфортно расположены печь на дровах и раскладной диван для гостей. Рабочая зона расположена в центре комнаты, что обеспечивает к ней комфортный доступ. Кухня от рабочей зоны отделена барной стойкой и шкафом для хранения вещей. Интерьер выполнен в светлых тонах в стиле лофт с использованием акцентов из бетона и кирпича.







Категории: Интерьер для квартиры, Мебель для кухни, Интерьер кухни в доме, Мебель для гостиной, Идеи дизайна спальни, Мебель диваны, Стили интерьеров квартир