Квартира для семьи с двумя детьми в Амстердаме.
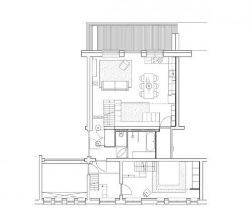
Дизайнеры Standard Studio совместно с Casa Architecten оформили интерьер квартиры площадью 100 квадратных метров в Амстердаме, Нидерланды. Резиденция расположена в жилом комплексе, здание которого раньше занимало учебное заведение. Апартаменты принадлежат семье из четырёх человек. На месте, где ранее располагалась учительская, теперь спроектированы спальни, а вместо одного из классов обустроена гостиная
. Высокие потолки стали явным плюсом проекта - архитекторы создали дополнительное пространство второго уровня. Дневная зона объединяет гостиную, столовую, кухню, детскую игровую и кабинет. Таким образом, все члены семьи могут заниматься своими делами, при этом находясь вместе. Также была продумана и система хранения, ведь в доме, где есть маленькие дети, много шкафов и полок не бывает. Так, под лестницей предусмотрены модули для отдыха и хранения игрушек.









Получите больше информации об интерьере маленькой квартиры http://interior.ru-best.com/interer-dlya-kvartiry/interer-malenkoy-kvartiry