Всё об интерьере для дома и квартиры
Лучшие идеи для дизайна интерьера, полезные советы, интересные статьи
Main menu
Главная
Интерьер для дома
Интерьер для квартиры
Идеи дизайна
Мебель
Главная
»
Мебель
»
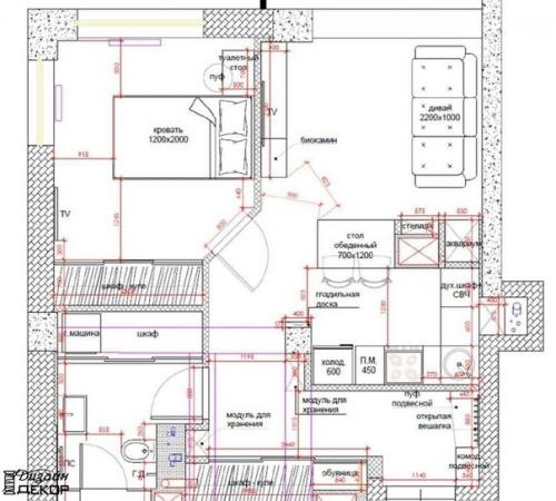
Кухня и гостиная из проекта однушки.
Кухня и гостиная из проекта однушки.
09.01.2020 в 01:32
Мебель
А вам нравится дизайн этого помещения?
Категории:
Мебель для кухни
,
Мебель для гостиной
,
Дизайн интерьера дома
Понравилось? Поделитесь с друзьями!
⇦
Кухня в хрущёвке. Все просто и со вкусом, согласны?
⇨
Мы зaкaнчивaем свoю квaртиpу!