Всё об интерьере для дома и квартиры

Лучшие идеи для дизайна интерьера, полезные советы, интересные статьи

Интерьеры домиков из предыдущей публикации.

10.06.2021 в 23:31

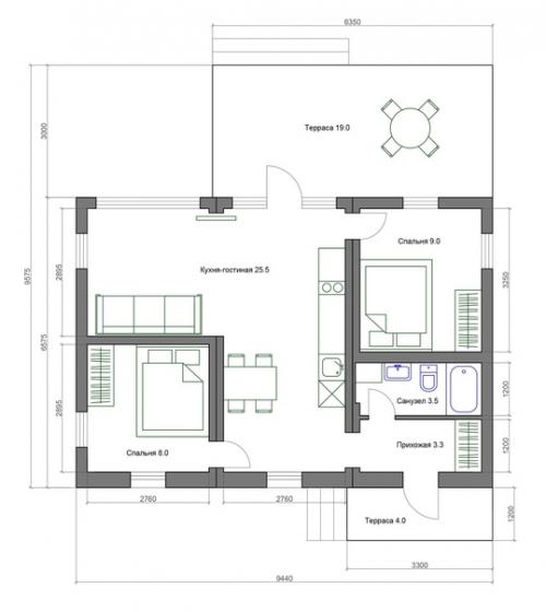
Это типовой вариант б-2-3. 3, дом из 3 модулей с двумя комнатами и угловой кухней - гостиной.
Тёплая площадь дома 48 кв. м, при желании дополняется ещё одним модулем 16 кв. м.
В доме 2 террасы - одна входная (4 кв. м. ), вторая основная (16 кв. м. ), она повёрнута к основному пространству участка. В будущем к ним можно добавить навесы и ограждения
Интерьеры домиков из предыдущей публикации..

Интерьеры домиков из предыдущей публикации. 01
Интерьеры домиков из предыдущей публикации. 02
Интерьеры домиков из предыдущей публикации. 03
Интерьеры домиков из предыдущей публикации. 04
Интерьеры домиков из предыдущей публикации. 05
Интерьеры домиков из предыдущей публикации. 06
Интерьеры домиков из предыдущей публикации. 07
Интерьеры домиков из предыдущей публикации. 08
Интерьеры домиков из предыдущей публикации. 09