Интерьер кухни - гостиной.
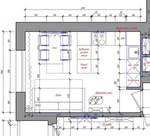
В помещении необходимо было разместить кухонный гарнитур и выделить небольшую зону под диван и тв. В данном проекте нет отдельной гостиной, зато есть кухня - гостиная и кабинет - гостиная. Такое было пожелание заказчиков.
Гарнитур сделали П - образным с полуостровом, который не используется как зона приёма пищи, а необходим просто как элемент зонирования и дополнительная рабочая поверхность. Под него встроили винный холодильник.

Цветовая гамма - сдержанные благородные оттенки бордо и серо-зелёного. В последнее время среди наших клиентов популярен такой цвет кухни, после моего ремонта но мы не против, так как цвет действительно.

Зонирование так же за счёт цвета стен и карниза выполнено. В зоне гостиной бордовая акцентная стенка с панелями Orac Decor под карнизом. Карниз, выкрашенный в 2 цвета, подчеркивает зонирование и в тоже время объединяет зону кухни с цветом стены за диваном.

Автор: дизаи н бюро Киры Разумниковой.


