Всё об интерьере для дома и квартиры

Лучшие идеи для дизайна интерьера, полезные советы, интересные статьи

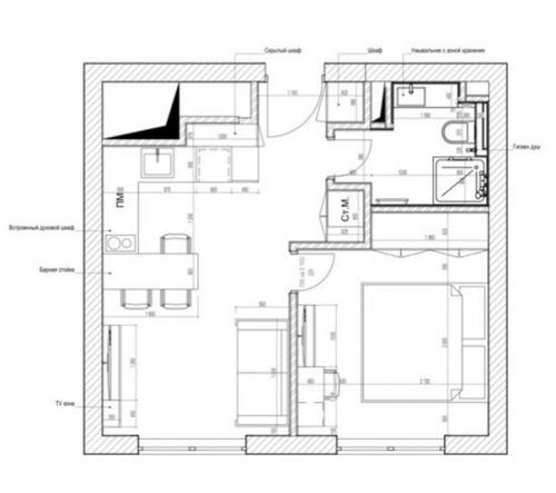
Интерьер компактной квартиры 33, 8 кв.

07.11.2023 в 19:56

м в Москве.
Кухня - гостиная (14, 9 кв. м) + спальня (11, 2 кв. м.
Дизайнеры Людмила цыркова (IG: Ludmila. Tsyrkova) и Яна сочаво (IG: Sochavo_Yana. Продолжение в комментариях +
Интерьер компактной квартиры 33, 8 кв..

Интерьер компактной квартиры 33, 8 кв. 01
Интерьер компактной квартиры 33, 8 кв. 02
Интерьер компактной квартиры 33, 8 кв. 03
Интерьер компактной квартиры 33, 8 кв. 04
Интерьер компактной квартиры 33, 8 кв. 05
Интерьер компактной квартиры 33, 8 кв. 06
Интерьер компактной квартиры 33, 8 кв. 07
Интерьер компактной квартиры 33, 8 кв. 08
Интерьер компактной квартиры 33, 8 кв. 09