Всё об интерьере для дома и квартиры

Лучшие идеи для дизайна интерьера, полезные советы, интересные статьи

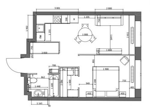
Интерьер 1-комнатной квартиры 43, 11 м 2 в Москве.

09.04.2025 в 15:55

Кухня - гостиная (17, 1 м 2) + спальня с гардеробной (14, 9 м 2.
Дизайнер Екатерина Муратова (@ Dsgn. With. me.
Фотограф Егор кодяков. Стилист мария Маркус.
Больше фото +
Интерьер 1-комнатной квартиры 43, 11 м 2 в Москве..

Интерьер 1-комнатной квартиры 43, 11 м 2 в Москве. 01
Интерьер 1-комнатной квартиры 43, 11 м 2 в Москве. 02
Интерьер 1-комнатной квартиры 43, 11 м 2 в Москве. 03
Интерьер 1-комнатной квартиры 43, 11 м 2 в Москве. 04
Интерьер 1-комнатной квартиры 43, 11 м 2 в Москве. 05
Интерьер 1-комнатной квартиры 43, 11 м 2 в Москве. 06
Интерьер 1-комнатной квартиры 43, 11 м 2 в Москве. 07
Интерьер 1-комнатной квартиры 43, 11 м 2 в Москве. 08
Интерьер 1-комнатной квартиры 43, 11 м 2 в Москве. 09