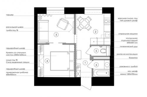
м в Москве.Кухня (8, 7 кв. м) + гостиная - спальня (18, 5 кв. м.Комнату зонировали раздвижной перегородкой.Архитектор Анна доброковская (IG: Dobrokovskaya_Design.Санузел в комментариях +.