Идеи для ремонта и дизайна квартиры. Мебель-трансформер – находка для малогабаритной квартиры
- Идеи для ремонта и дизайна квартиры. Мебель-трансформер – находка для малогабаритной квартиры
- Идеи для ремонта 1-комнатной квартиры. Планировки однокомнатной квартиры
- Готовые идеи для ремонта. Идеи ремонта квартиры. Новые фото
- Идеи для ремонта маленькой квартиры. 85 идей дизайна маленькой квартиры (фото)
- Выбираем стиль интерьера
- Маленькая квартира в стиле минимализм
- Маленькая квартира в скандинавском стиле
- Маленькая квартира в стиле лофт
- Маленькая квартира в стиле хай-тек
- Маленькая квартира в классическом стиле
- Планировка и зонирование
- Дизайн прихожей в маленькой квартире
- Дизайн ванной в маленькой квартире
- Дизайн кухни в маленькой квартире
Идеи для ремонта и дизайна квартиры. Мебель-трансформер – находка для малогабаритной квартиры
Интересные и не менее оригинальные решения для квартир, которые обделены изобилием свободного места, касаются их оформления с помощью трансформирующейся мебели. Такие идеи помогут не только красиво, но и практично организовать планировку квартиры, сделать ее удобной для повседневной жизни.
Ремонт малогабаритной квартиры не позволяет ее владельцу использовать большое количество отделочных материалов, декоративных ниш и массивных гипсокартонных перегородок. Именно поэтому владельцы подобных квадратных метров все чаще используют довольно простой косметический ремонт без излишеств, дополняя его современной раскладной мебелью. Такая чудо-техника обладает не только оригинальным дизайном, но и решает немало квартирных вопросов.
Среди подобной мебели существует своя классификация, которая выделяет четыре основных типа трасформеров:
- раскладная (чаще всего кресла-кровати, столы и стулья);
- выдвигающаяся (соединение шкафов и кроватей, дополнение их полками или даже целыми столами);
- поднимающаяся (такие модели обладают специальным подъёмником);
- модульная (используется по заданному функционалу).
Используя мебель-трансформер при косметическом ремонте квартиры, можно существенно оптимизировать жилое пространство, устранить дискомфорт, связанный с загромождением пространства.
Такие элементы интерьера могут служить не только в качестве традиционной мебели, но и стать арт-объектом. Последние примеры нередко используются при дизайнерском планировании квартир. Подобная мебель может плавно переходить то в потолок, то в пол, а то и вовсе образовывать фальш-фасад.
Ремонт однокомнатной квартиры чаще всего не обходится без трансформера, который соединяет в себе кровать и шкаф. Современные идеи не ограничиваются этим объединением, иногда можно встретить варианты трансформеров, которые камуфлируются под закрытые полки, столы или даже комоды.
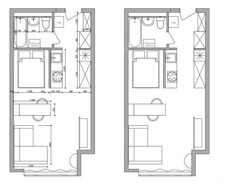
Идеи для ремонта 1-комнатной квартиры. Планировки однокомнатной квартиры
Чтобы при ремонте однокомнатной квартиры подобрать оптимальный дизайн, нужно учитывать и ее тип. На данный момент распространено несколько основных разновидностей, каждая из которых имеет свои характерные особенности:
- Хрущевка. Квартиры советской постройки, которым уже несколько десятков лет. Их отличительная особенность – крошечная площадь, часто она не превышает 30 квадратов. Небольшая кухня и комната, совмещенный санузел и прихожая в несколько квадратных метров. Тут очень важно продумать все до мелочей, использовать каждый доступный уголок для систем хранения. Планировка стандартная, каждое помещение нужно оформлять отдельно.

- Студия. Более современные решения с объединенным пространством, которые строятся не так давно, площадь на несколько метров больше, чем в хрущевках. Планировка более свободная, кухонная и жилая зоны чаще всего разделяются мебелью, чтобы не занимать пространство. Что касается расстановки, тут есть свобода выбора: проще всего посмотреть фото дизайна однокомнатных квартир-студий.

- Среднегабаритная квартира. Обычно площадь составляет около 40 квадратов, что обеспечивает намного больше возможностей при оформлении. Планировка чаще всего стандартная – прихожая, из которой двери идут в комнату, кухню, ванную и туалет. Нередко есть и достаточно большая ниша, в которой можно оборудовать гардероб или даже сделать спальное место. Расположение и компоновка помещения при этом могут быть разными.

- «Распашонка». Название обусловлено особенностями планировки. Обычно после входа есть коридор среднего размера, из которого в одну сторону расположена дверь в комнату, в другую – кухня, а спереди – туалет и ванна. Ширина помещений обычно не очень большая, что также является особенностью этого типа. Помещения длинные, что требует использования приемов по визуальному расширению пространства.

Есть квартиры в новостройках с площадью более 45 кв м. Это самые лучшие варианты, в которых места достаточно для воплощения любого замысла.
Готовые идеи для ремонта. Идеи ремонта квартиры. Новые фото
Калейдоскоп современных идей ремонта, планировки, меблировки и отделки квартир! В нашем обзоре, на примере реальных фото из портфолио ГК «Фундамент» , мы расскажем о наиболее ярких находках профессионалов в области ремонта и продемонстрируем, как применить их на практике.
Отделка прихожей квартиры в стиле ар-деко
Поводом начать ремонтно-строительные работы в квартире или доме для многих являются выгоревшие обои, пришедшая в негодность сантехника или барахлящая электропроводка. Но капитальный ремонт — это не просто замена отделки или коммуникаций, а еще и уникальная возможность повысить комфортабельность жилья, исправить недостатки планировки, создать красивый и стильный интерьер с яркой индивидуальностью.
Организация пространства квартиры: актуальные приемы и креативные решения
Вход в просторную общественную зону квартиры на Плющихе
Для улучшения эргономики жилья необходимо хорошо продумать планировку квартиры и расположение функциональных зон. А как решить проблему нехватки места, приподнять потолок или улучшить освещенность отдельных помещений? Профессиональные дизайнеры интерьера уверены, что с помощью современных идей, которые можно реализовать во время ремонта, типовую квартиру легко превратить в эксклюзивное жилое пространство.
1. ТВ-зона в роли условного разделителя
Декоративная перегородка в ТВ-зоне гостиной-столовой
Отделка перегородки зеркалами и моддингами
Просторное помещение кухни-гостиной-столовой квартиры в ЖК «Жизнь на Плющихе» имеет площадь около 100 кв. м. Такое помещение нуждается в условном зонировании, подсказкой для которого стало наличие несущей колонны посреди комнаты. Наши дизайнеры и архитекторы задекорировали колонну под перегородку для ТВ, отделанную панелями, молдингами и фацетированными зеркалами с ромбовидным рисунком.
2. Широкий портал без дверей
Широкий портал между прихожей и гостиной
Пространство прихожей и вид на гостиную
Визуально «распахнуть» и наполнить светом пространство прихожей поможет идея организации между холлом и гостиной широкого портала без дверей в окружении парных «окон» без стеклянных вставок. Контрастная графичная отделка из черного керамогранита, дерева венге и фигурных металлических перегородок подчеркнёт вход в парадную общественную зону квартиры.
3. Раздвижные стеклянные двери
Раздвижная перегородка в интерьере квартиры в скандинавском стиле
Высокие раздвижные белые двери в гостиной
Высокая раздвижная дверь с большой площадью остекления между коридором и гостиной — актуальная идея для ремонта квартиры . Она визуально объединяет эти два помещения и буквально «распахивает» пространство, заодно улучшая освещенность коридора. Для интерьера в скандинавском стиле отлично подойдет дверь с белым каркасом, а для лофта — с черным или темно-серым. Главное — выбрать модель только с верхними направляющими, так получится сохранить целостность пола, который тоже «работает» на создание единого пространства.
4. Компактный кухонный блок
Белый кухонный блок в кухне-гостиной
Компактная рабочая зона и колонны с бытовой техникой
Компактная кухня с глухими глянцевыми фасадами в цвет стен смотрится очень лаконично и совершенно не бросается в глаза. Чтобы сэкономить полезную площадь и при этом реализовать весь необходимый функционал, дизайнеры ГК «Фундамент» спроектировали кухонный блок с учетом геометрии помещения, расположив мебель по внешнему углу.
5. Дуэт напольных покрытий
Сочетание деревянного и керамического паркета в гостиной и кухне
Вид из гостиной на кухню
Как ненавязчиво зонировать пространство кухни-столовой-гостиной в современном стиле , не разделенное глухими перегородками? С помощью разных напольных покрытий. Для зоны кухни можно использовать керамический паркет, а для столовой-гостиной — паркетную доску. Чтобы избежать ненужной пестроты, лучше отдать предпочтение близким по цвету материалам, а стык оформить декоративным профилем подходящего оттенка. Хотите заодно немного расширить пространство? Тогда есть смысл уложить паркетную доску по диагонали.
Идеи для ремонта маленькой квартиры. 85 идей дизайна маленькой квартиры (фото)

Фото: behance.net
Планировать интерьер маленькой квартиры всегда сложнее. Нужно позаботиться и о красоте, и о функциональности. А заодно учесть пожелания всех членов семьи, предусмотреть место для работы, творчества и хобби, не забывать о потенциальных гостях. Возникают вопросы с перепланировкой и выбором стиля? Не знаешь, за что хвататься первым делом? Мы поможем разобраться!
Выбираем стиль интерьера
В маленьких квартирах лучше смотрятся лаконичные современные стили. Они не такие громоздкие, в них меньше деталей и декора, чем в традиционной классике. Простота и функциональность – тренды последних лет. И для маленьких квартир это особенно ценно.
Маленькая квартира в стиле минимализм
Самое простое решение – минимализм. Его основные черты – светлые оттенки, яркие акценты, простые формы, четкая геометрия., обилие света, минимум вещей.
Даже самая маленькая квартира кажется просторной. Все предметы – максимально функциональны. Нет ничего лишнего! Минималистичный интерьер – отличный повод, наконец, разобрать старые закрома с хламом.

Маленькая квартира в скандинавском стиле
Скандинавский стиль тоже основан на минимализме и лаконичности. Разница в том, что он тяготеет к натуральным материалам и фактурам, текстилю, обилию дерева и хэнд-мейда.
Когда обычный минимализм более холодный и сдержанный, скандинавский – скорее по-домашнему уютный. Но в то же время все еще очень простой.


Маленькая квартира в стиле лофт
Лофт в классическом исполнении требует пространства. Но его элементы можно выгодно использовать в маленькой квартире.
Свободная открытая планировка позволяет экспериментировать с зонированием. Грубая отделка – не тратить драгоценные сантиметры на выравнивание и шлифовку поверхностей.
Не придется думать, как спрятать трубы и радиаторы в маленькой квартире. А мебель – простая и в то же время функциональная.

Маленькая квартира в стиле хай-тек
Если хочешь чего-то более современного и креативного, обрати внимание на хай-тек. Это бело-серая гамма, обилие света, хромированных деталей, глянца и стекла.
Отражающие поверхности всегда создают иллюзию пространства. Легкие пластиковые и металлические конструкции зачастую компактнее массивных деревянных шкафов и стеллажей.
А еще в хай-тек идеально вписывается ультрасовременная техника, которая часто выбивается из классических и романтических интерьеров.


Маленькая квартира в классическом стиле
Полноценная классика с разнообразными элементами античности, барокко, рококо и национальных стилей не впишется в маленькую квартиру. Но это не значит, что нельзя заимствовать ее элементы.
Классические интерьеры – это продуманная композиция с центральными элементами и симметричной расстановкой. Простые прямые линии и четкая геометрия очень функциональны.
В оформлении преобладают натуральные материалы. Ощущение роскоши передают экзотические сорта дерева, натуральный камень, дорогой текстиль.

Планировка и зонирование
К обустройству маленькой квартиры лучше подходить комплексно. Если планировать все помещения сразу – гораздо проще продумать расположение мебели, техники и других деталей.
Изначально определись с планировкой: можно ли снести или переставить перегородки, перенести кухню или санузел, объединить балкон с комнатой. И только после этого начинай работать с каждой комнатой отдельно.
Дизайн прихожей в маленькой квартире
В маленькой прихожей в первую очередь позаботься о свете и зеркальных поверхностях. Это сделает ее комфортнее и удобнее. Избегай открытых крючков, острых деталей и других элементов, о которые можно травмироваться.
Если есть возможность – вынеси в прихожую шкаф. Например, купе с зеркальной дверью во всю стену. Конечно, он займет место, но зато не придется пристраивать его в жилой комнате.


Дизайн ванной в маленькой квартире
Если санузел совсем маленький, обдумай установку душевой кабины вместо ванной. Современные модели очень многозадачны и интересные.
Постарайся вписать в ванную комнату стиральную машинку. Для экономии места сейчас есть модели, сразу совмещенные с раковиной.
Если останется место, установи небольшой узкий пенал для косметических и хозяйственных принадлежностей.


Дизайн кухни в маленькой квартире
При обустройстве маленькой кухни встраивай в гарнитур все, что можно. Обрати внимание на маленькие раздельные холодильники и морозильные камеры.
Заранее продумай, нужна ли тебе посудомоечная машина, духовка, микроволновая печь. Если живешь в одиночестве, плиту можно заменить на маленькую варочную поверхность с двумя конфорками.
