Всё об интерьере для дома и квартиры

Лучшие идеи для дизайна интерьера, полезные советы, интересные статьи

"Хрущёвка с Душой": уютный интерьер с историей в деталях.

09.01.2026 в 00:33

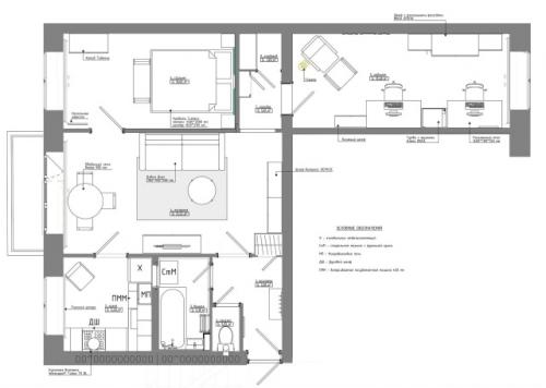
В этой хрущёвке отец заказчицы провёл перепланировку: закрыл вход на кухню, увеличив пространство ванной комнаты. Кухня осталась на своём месте, а из-за газовой плиты дверь сохранили. Квартира разделена на три комнаты: проходную гостиную, спальню и кабинет. Интерьер наполнен камерной атмосферой и лёгкими нотками старины, создающими особый уют
Хрущёвка с Душой: уютный интерьер с историей в деталях..

Хрущёвка с Душой: уютный интерьер с историей в деталях. 01
Хрущёвка с Душой: уютный интерьер с историей в деталях. 02
Хрущёвка с Душой: уютный интерьер с историей в деталях. 03
Хрущёвка с Душой: уютный интерьер с историей в деталях. 04
Хрущёвка с Душой: уютный интерьер с историей в деталях. 05
Хрущёвка с Душой: уютный интерьер с историей в деталях. 06
Хрущёвка с Душой: уютный интерьер с историей в деталях. 07
Хрущёвка с Душой: уютный интерьер с историей в деталях. 08
Хрущёвка с Душой: уютный интерьер с историей в деталях. 09