Всё об интерьере для дома и квартиры

Лучшие идеи для дизайна интерьера, полезные советы, интересные статьи

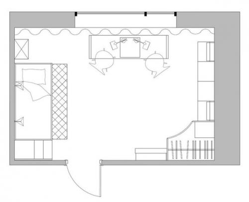
Эргономичный интерьер: детская для разнополых детей.

12.03.2016 в 23:30

Дизайн детской для разнополых детей обычно делают в двух цветах - голубом и розовом, стремясь разделить с их помощью комнату на два отдельных пространства для каждого ребенка. Но такое традиционное решение не лишено своих минусов, и, кроме того, является достаточно стандартным, и потому непривлекательным
Эргономичный интерьер: детская для разнополых детей..

Эргономичный интерьер: детская для разнополых детей. 01
Эргономичный интерьер: детская для разнополых детей. 02
Эргономичный интерьер: детская для разнополых детей. 03
Эргономичный интерьер: детская для разнополых детей. 04
Эргономичный интерьер: детская для разнополых детей. 05
Эргономичный интерьер: детская для разнополых детей. 06
Эргономичный интерьер: детская для разнополых детей. 07
Эргономичный интерьер: детская для разнополых детей. 08
Эргономичный интерьер: детская для разнополых детей. 09

Подробнее читайте о детской мебели http://interior.ru-best.com/mebel/detskaya-mebel