Всё об интерьере для дома и квартиры

Лучшие идеи для дизайна интерьера, полезные советы, интересные статьи

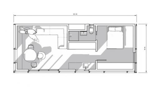
Архитекторы Abodu совместно с бюро Koto представили компактный модульный дом, установленный в сан - Хосе, штат Калифорния, США.

11.04.2020 в 13:29

Данная модель скандинавскую простоту с калифорнийским характером демонстрирует. Скромная конструкция облицована деревянным сайдингом и увенчана двускатной крышей из листового металла.
Компактная планировка включает одну спальню и ванную комнату, гостиную и столовую открытой планировки, а также кухню.
Большая стеклянная дверь позволяет открывать интерьер дома наружу, максимально используя тёплый калифорнийский климат.
Архитекторы Abodu совместно с бюро Koto представили компактный модульный дом, установленный в сан - Хосе, штат Калифорния, США.
Внутренняя площадь дома составляет 46 квадратных метров. Ряд экономящих пространство элементов позволяют жильцам дома максимизировать компактность помещений. Места для хранения организованы, например, под кроватью, а также внутри встроенной скамьи вдоль одной из стен гостиной. Минидом@Tinyhouse планировка@Tinyhouse.

Архитекторы Abodu совместно с бюро Koto представили компактный модульный дом, установленный в сан - Хосе, штат Калифорния, США. 01
Архитекторы Abodu совместно с бюро Koto представили компактный модульный дом, установленный в сан - Хосе, штат Калифорния, США. 02
Архитекторы Abodu совместно с бюро Koto представили компактный модульный дом, установленный в сан - Хосе, штат Калифорния, США. 03
Архитекторы Abodu совместно с бюро Koto представили компактный модульный дом, установленный в сан - Хосе, штат Калифорния, США. 04
Архитекторы Abodu совместно с бюро Koto представили компактный модульный дом, установленный в сан - Хосе, штат Калифорния, США. 05
Архитекторы Abodu совместно с бюро Koto представили компактный модульный дом, установленный в сан - Хосе, штат Калифорния, США. 06
Архитекторы Abodu совместно с бюро Koto представили компактный модульный дом, установленный в сан - Хосе, штат Калифорния, США. 07
Архитекторы Abodu совместно с бюро Koto представили компактный модульный дом, установленный в сан - Хосе, штат Калифорния, США. 08
Архитекторы Abodu совместно с бюро Koto представили компактный модульный дом, установленный в сан - Хосе, штат Калифорния, США. 09