Всё об интерьере для дома и квартиры

Лучшие идеи для дизайна интерьера, полезные советы, интересные статьи

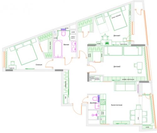
Завершила еще один дизайн - проект: интерьер трехкомнатной квартиры 120 кв.

02.11.2019 в 00:57

м. в ЖК "Маршал Град". Особенность этого ЖК - очень сложные планировки со скошенными стенами!
Начну знакомить с интерьером со спальни. Заказчики просили сделать светлый интерьер с белыми стенами и в стиле "Современная Классика". Обои уже купили, образец штукатурки готов, черновые работы начали
Завершила еще один дизайн - проект: интерьер трехкомнатной квартиры 120 кв..

Завершила еще один дизайн - проект: интерьер трехкомнатной квартиры 120 кв. 01
Завершила еще один дизайн - проект: интерьер трехкомнатной квартиры 120 кв. 02
Завершила еще один дизайн - проект: интерьер трехкомнатной квартиры 120 кв. 03
Завершила еще один дизайн - проект: интерьер трехкомнатной квартиры 120 кв. 04
Завершила еще один дизайн - проект: интерьер трехкомнатной квартиры 120 кв. 05