Всё об интерьере для дома и квартиры

Лучшие идеи для дизайна интерьера, полезные советы, интересные статьи

Скандинавские мотивы в интерьере квартиры в Москве // 02.

30.03.2018 в 12:29

Дизайн интерьера: Vera Tarlovskaya.
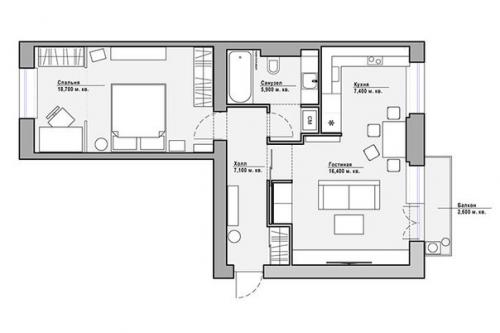
Площадь: 62 кв. м.

Квартира в скандинавском стиле выполнена. Используемые материалы - "Натуральное Дерево, Грубый Металл и Аутентичный Кирпич в Сочетании с Рафинированными Поверхностями". Монохромное пространство оживляют яркие акценты. Желтый и красный на сером фоне - беспроигрышный вариант
Скандинавские мотивы в интерьере квартиры в Москве // 02..

Скандинавские мотивы в интерьере квартиры в Москве // 02. 01
Скандинавские мотивы в интерьере квартиры в Москве // 02. 02
Скандинавские мотивы в интерьере квартиры в Москве // 02. 03
Скандинавские мотивы в интерьере квартиры в Москве // 02. 04
Скандинавские мотивы в интерьере квартиры в Москве // 02. 05
Скандинавские мотивы в интерьере квартиры в Москве // 02. 06
Скандинавские мотивы в интерьере квартиры в Москве // 02. 07