Всё об интерьере для дома и квартиры
Лучшие идеи для дизайна интерьера, полезные советы, интересные статьи
Main menu
Главная
Интерьер для дома
Интерьер для квартиры
Идеи дизайна
Мебель
Главная
»
Интерьер для квартиры
»
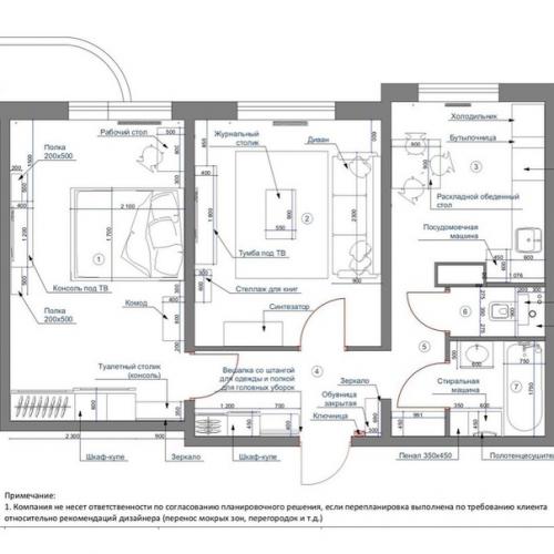
Практичный вариант интерьера в двухкомнатной квартире.
Практичный вариант интерьера в двухкомнатной квартире.
16.09.2022 в 18:29
Интерьер для квартиры
Просто и со вкусом
.
Категории:
Интерьер для квартиры
Понравилось? Поделитесь с друзьями!
⇦
Мы знакомим вас с проектом совмещенной кухни гостиной для квартиры 19.
⇨
Какую красоту сделали на 3 кв.