Номинация: интерьер жилого пространства.
Проект: "Акцент для Настроения".
Автор: Дарья Лушина.
Цель проекта: создать интерьер в "Хрущёвке" для молодого парня, сочетая текстуры бетона, камня и дерева.
Основной идеей проекта является создание современного и функционального интерьера квартиры, помещения которой должны быть неприхотливы и легки в содержании.

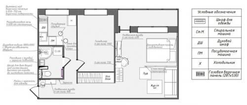
Интерьер квартиры выполнен в спокойных неярких тонах, не перегружен лишними деталями. А места хранения являются закрытыми, что способствует созданию комфортной и функциональной обстановки.

Яркий диван в гостиной разбавляет серые оттенки и заряжает энергией. А мягкий пуф и журнальный стол создают гостеприимную атмосферу и "Зовут" поиграть в настольные игры, которые так любит заказчик.

Смешение текстур и разноплановое освещение придают пространству индивидуальный характер, а яркие акценты делают его стильным и уникальным.

Дизайнперспектива дизайнперспектива 2024 интерьержилогопространства дарьялушина.



