Всё об интерьере для дома и квартиры

Лучшие идеи для дизайна интерьера, полезные советы, интересные статьи

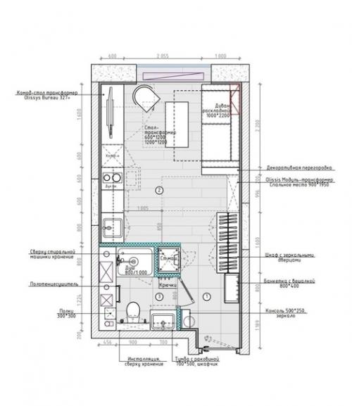
Нежная и приятная квартира - студия.

29.10.2023 в 19:29

Многие детали можно взять на заметку.
Площадь: 25 кв. м.

Идеальные решения для дизайна вашего интерьера.
Необычные идеи оформления
Нежная и приятная квартира - студия..

Нежная и приятная квартира - студия. 01
Нежная и приятная квартира - студия. 02
Нежная и приятная квартира - студия. 03
Нежная и приятная квартира - студия. 04
Нежная и приятная квартира - студия. 05
Нежная и приятная квартира - студия. 06
Нежная и приятная квартира - студия. 07
Нежная и приятная квартира - студия. 08
Нежная и приятная квартира - студия. 09