Всё об интерьере для дома и квартиры

Лучшие идеи для дизайна интерьера, полезные советы, интересные статьи

Modern RED. Квартира для молодого предпринимателя спроектирована.

01.06.2018 в 11:29

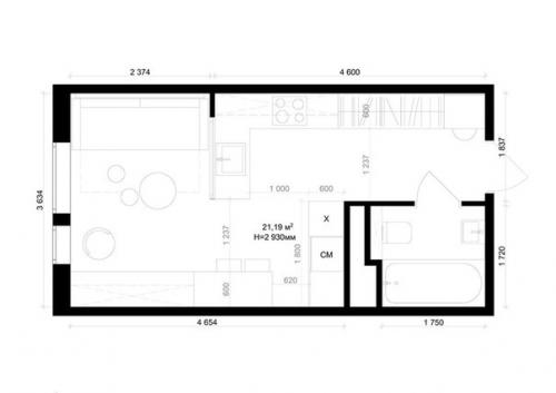
В данном проекте удалось решить 2 основные задачи: зонирование и функциональность. С помощью стеклянной перегородки отделили кухню от зоны гостиной/спальни. Таким образом, в светлое время суток свет попадает кухню. Зона постирочной спрятана в шкафах, которые, благодаря единому цвету со стеной, создают впечатление монолитности и скрытности в интерьере. Современная стилистика и яркие акценты делают этот интерьер уютным и эргономичным
Modern RED. Квартира для молодого предпринимателя спроектирована..

Modern RED. Квартира для молодого предпринимателя спроектирована. 01
Modern RED. Квартира для молодого предпринимателя спроектирована. 02
Modern RED. Квартира для молодого предпринимателя спроектирована. 03
Modern RED. Квартира для молодого предпринимателя спроектирована. 04
Modern RED. Квартира для молодого предпринимателя спроектирована. 05
Modern RED. Квартира для молодого предпринимателя спроектирована. 06
Modern RED. Квартира для молодого предпринимателя спроектирована. 07
Modern RED. Квартира для молодого предпринимателя спроектирована. 08
Modern RED. Квартира для молодого предпринимателя спроектирована. 09