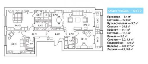
м. в современном жилом комплексе.
Квартира в современном жилом комплексе престижного района Москвы находится. В ней планирует жить молодая семья из двух человек. Дизайнер с заказчиком черпали вдохновение в стилистике mid Century, отличающейся легкостью и чистотой: лаконичная обстановка и простота форм элегантно формируют образ пространства. Разработанный интерьер являет собой сочетание современных предметов мебели, мягких цветовых контрастов, графичности и сдержанности
.




