Всё об интерьере для дома и квартиры

Лучшие идеи для дизайна интерьера, полезные советы, интересные статьи

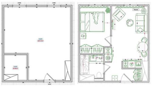
Интерьер однокомнатной квартиры 34, 5 кв.

12.07.2024 в 00:33

м в ЖК Движение тушино в Москве.
Кухня - гостиная (17, 5 кв. м) + спальня (10, 3 кв. м.
Дизайнер Марина бырылова (@ Marina_Byrylova.
Больше фото в комментариях +
Интерьер однокомнатной квартиры 34, 5 кв..

Интерьер однокомнатной квартиры 34, 5 кв. 01
Интерьер однокомнатной квартиры 34, 5 кв. 02
Интерьер однокомнатной квартиры 34, 5 кв. 03
Интерьер однокомнатной квартиры 34, 5 кв. 04
Интерьер однокомнатной квартиры 34, 5 кв. 05
Интерьер однокомнатной квартиры 34, 5 кв. 06
Интерьер однокомнатной квартиры 34, 5 кв. 07
Интерьер однокомнатной квартиры 34, 5 кв. 08
Интерьер однокомнатной квартиры 34, 5 кв. 09