Всё об интерьере для дома и квартиры

Лучшие идеи для дизайна интерьера, полезные советы, интересные статьи

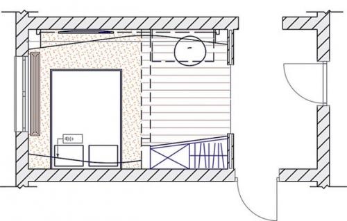
Дизайн небольшой 9-метровой спальни.

15.02.2016 в 10:54

Интерьер спальни 9 кв. м. получился современным и очень красочным, несмотря на то, что цвета ее отделки - белый и серый. Поскольку площадь помещения очень маленькая, автор проекта решил использовать зонирование, как главный инструмент дизайна небольшой спальни, чтобы рационально распорядиться каждым сантиметром площади
Дизайн небольшой 9-метровой спальни..

Дизайн небольшой 9-метровой спальни. 01
Дизайн небольшой 9-метровой спальни. 02
Дизайн небольшой 9-метровой спальни. 03
Дизайн небольшой 9-метровой спальни. 04
Дизайн небольшой 9-метровой спальни. 05
Дизайн небольшой 9-метровой спальни. 06
Дизайн небольшой 9-метровой спальни. 07
Дизайн небольшой 9-метровой спальни. 08
Дизайн небольшой 9-метровой спальни. 09

Ещё читайте новости о современном интерьере квартиры http://interior.ru-best.com/interer-dlya-kvartiry/sovremennyy-interer-kv...