Всё об интерьере для дома и квартиры

Лучшие идеи для дизайна интерьера, полезные советы, интересные статьи

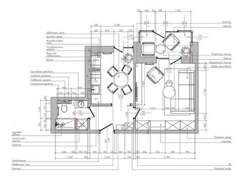
Дизайн квартиры 33 кв.

10.11.2023 в 00:56

м (38 кв. м с лоджией) в Зеленоградске.
Интерьер в стиле хюгге. Кухня (8, 7 кв. м) + гостиная (16, 2 кв. м.
Автор Александр лузгин (IG: Alexandrluzgin.
Продолжение в комментариях +
Дизайн квартиры 33 кв..

Дизайн квартиры 33 кв. 01
Дизайн квартиры 33 кв. 02
Дизайн квартиры 33 кв. 03
Дизайн квартиры 33 кв. 04
Дизайн квартиры 33 кв. 05
Дизайн квартиры 33 кв. 06
Дизайн квартиры 33 кв. 07
Дизайн квартиры 33 кв. 08
Дизайн квартиры 33 кв. 09