Всё об интерьере для дома и квартиры

Лучшие идеи для дизайна интерьера, полезные советы, интересные статьи

Дизайн этой квартиры хочется рассматривать бесконечно!

12.04.2024 в 13:29

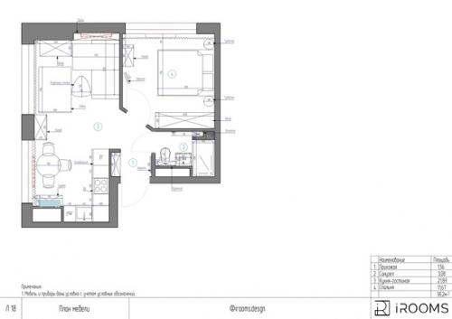
Площадь квартиры всего 38, 2 м! Но, посмотрите какое красивое и стильное пространство удалось сделать нашему дизайнеру!
Стиль mid Century Modern с элементами Boho.

Заказчики хотели светлый, но не безликий бело - серый интерьер, в котором легко дышать и который интересно рассматривать.

Считаем, что нам это удалось, а вы как думаете?

Дизайн этой квартиры хочется рассматривать бесконечно!
Дизайнер - Яна.

Дизайн этой квартиры хочется рассматривать бесконечно! 01
Дизайн этой квартиры хочется рассматривать бесконечно! 02
Дизайн этой квартиры хочется рассматривать бесконечно! 03
Дизайн этой квартиры хочется рассматривать бесконечно! 04
Дизайн этой квартиры хочется рассматривать бесконечно! 05
Дизайн этой квартиры хочется рассматривать бесконечно! 06
Дизайн этой квартиры хочется рассматривать бесконечно! 07
Дизайн этой квартиры хочется рассматривать бесконечно! 08
Дизайн этой квартиры хочется рассматривать бесконечно! 09